這套 50 ㎡ 的房子位于北京海淀區,屋主為了方便業主兩個兒子上學,因此三代人同住在這里。設計師將主臥做成上床下桌,又設計出一個榻榻米床,滿足了小朋友想要的樹屋,同時將客廳和廚房在一起,隔出一個靈活的老人房,陽台就成為了用餐區,這樣一家人都能得到好的休息,還不顯擁擠。
一起來看看吧!

*以下圖文來自
好好住認證設計師@住范兒zhufaner
戶型 2 室
使用面積 50 ㎡
裝修花費 12.5 萬元
房屋位置 北京 海淀區
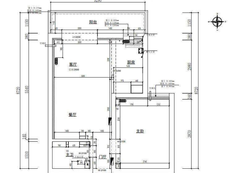
戶型圖

原戶型問題:
1. 只有一個臥室,不能滿足三代人同住;
2. 沒有衛生間干濕分離,早上上班、上學會有早高峰排隊的尷尬;
3. 戶型小,一旦另外隔出一間單獨的房間就會顯得擁擠。
屋主需求:
1. 一家三代人住,要兩個衛生間,同時需要一些適老化的設計;
2. 兒童房想要做樹屋,屋主夫妻的臥室也要保證隱私;
3. 要有滿足一家人的收納空間,同時通透敞亮不擁擠。

改造重點:
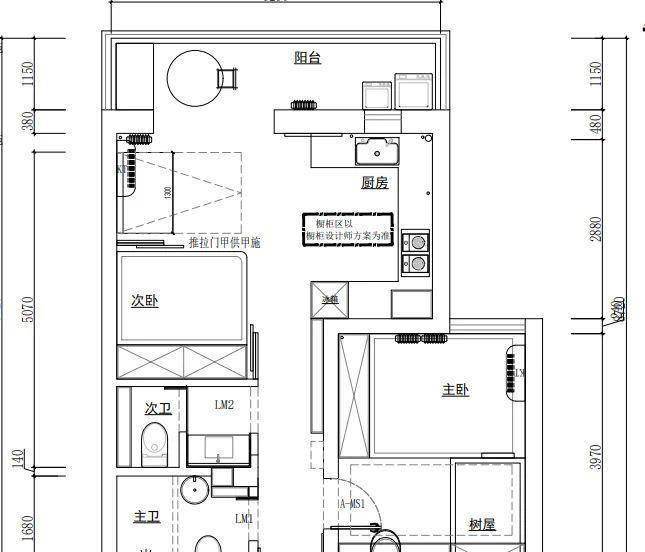
1. 主臥做上床下桌的書屋設計,同時卡出一個榻榻米床的位置,將兒童房、主臥、衣帽間和定制柜都規劃到這里。
2. 客廳用折疊磁吸門簾當作軟隔斷,隔出一個靈活的老人房。
3. 原本的主衛向餐廳推進 17 公分,新建一個 1.
3㎡ 的小衛生間,實現干濕分離,分擔原衛生間的壓力。
玄關

進門處空間位置有限無法做玄關柜,所以鞋柜不在門口,但沒有條件可以創造條件,設計師建議在墻面裝了不占空間的壁掛折疊換鞋凳,結合門上的拖鞋掛架,方便進出的時候坐著換鞋。
文章未完,點擊下一頁繼續